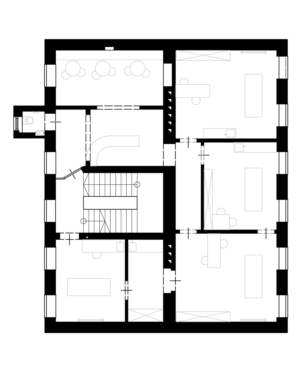
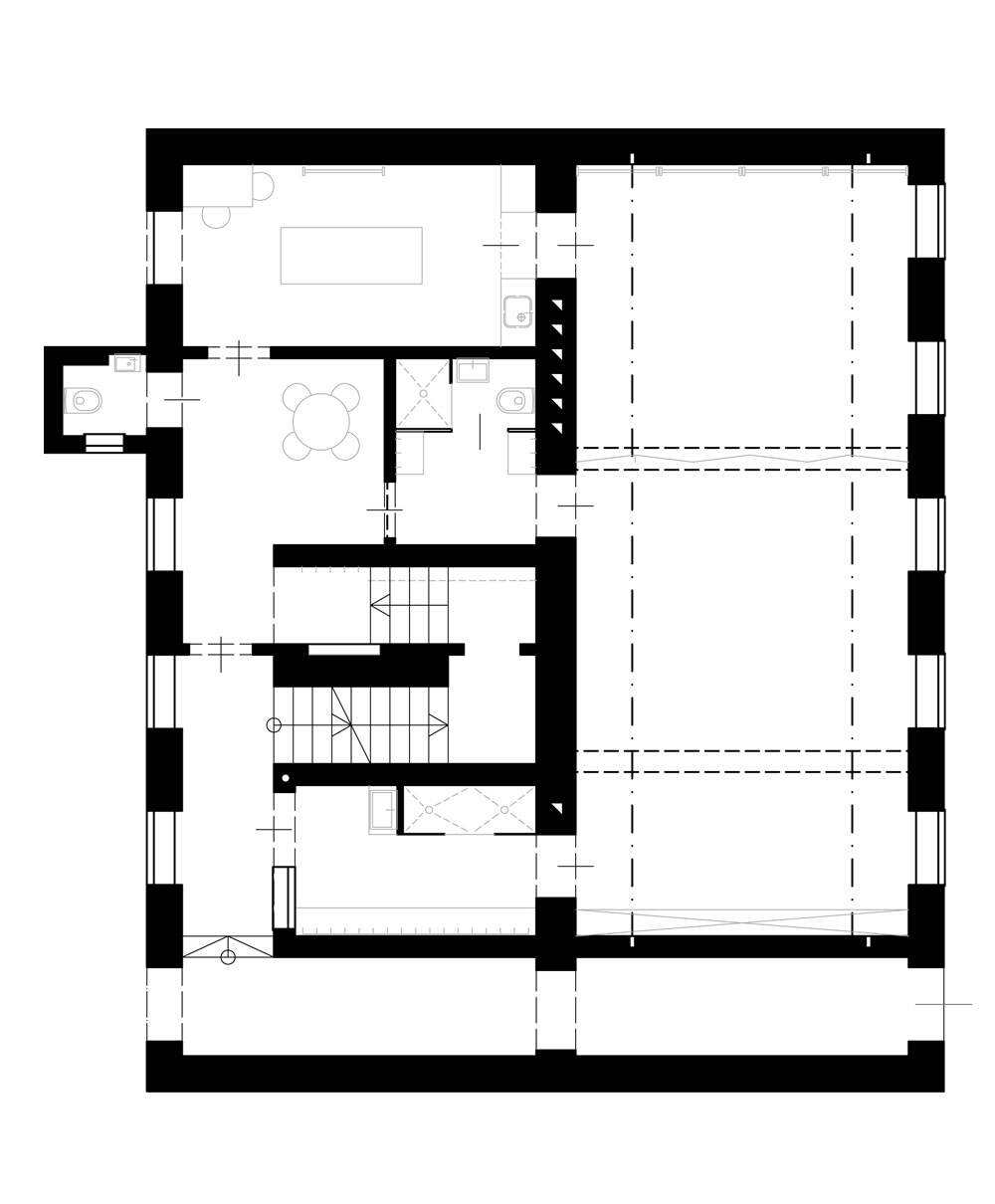
Medzentrum23

  • Datum: 2017
  • Typ: Sanierung, Umbau
  • Status: realisiert
  • Ort: 1230 Wien
  • Fotos: ©ae-l
  • www.medzentrum23.at
  • /